Plant Wastewater Treatment dwg
Description
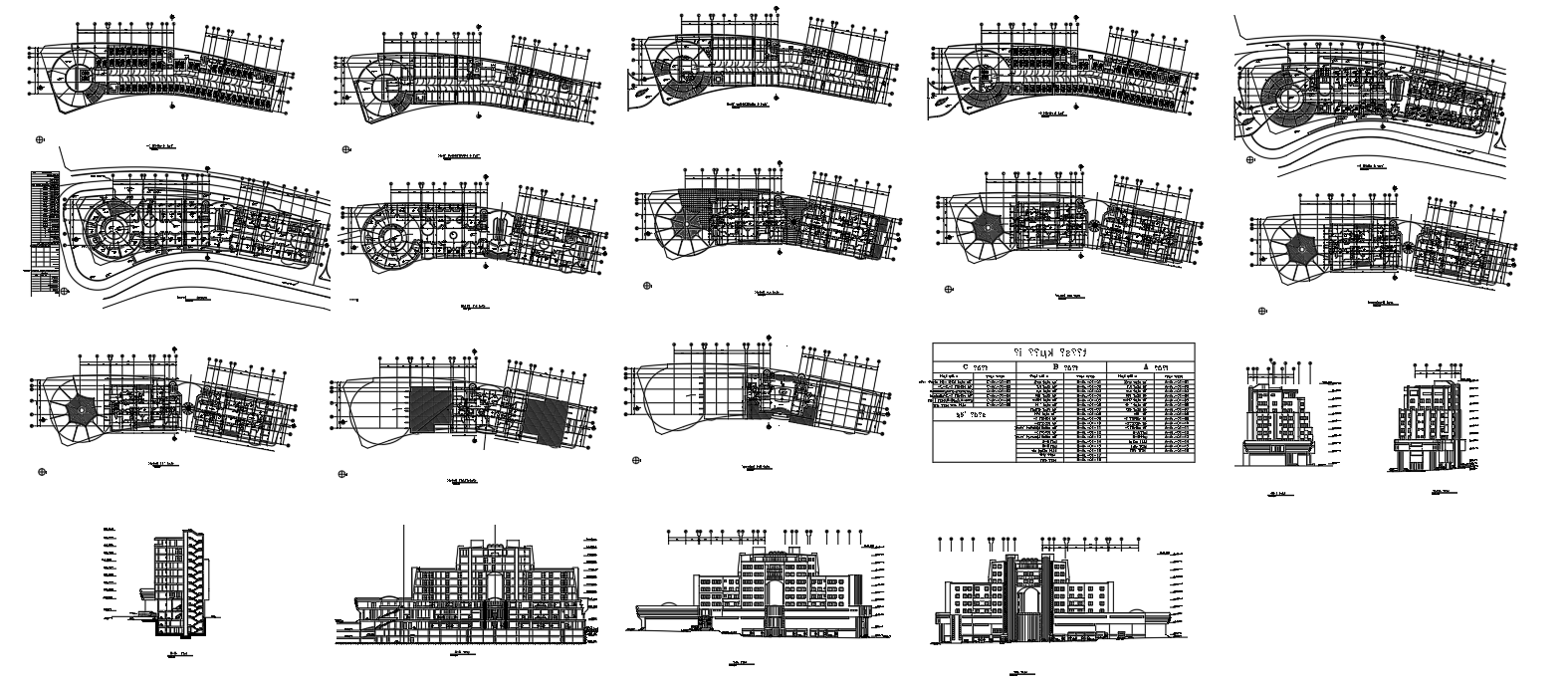
Plant Wastewater Treatment layout plan dwg file. Plant Wastewater Treatment Market Design and Elevation that includes building, road map, entry gate, checking counter, interior counter details, wall construction, column and beam details and much more of Plant Wastewater Treatment
Uploaded by:
