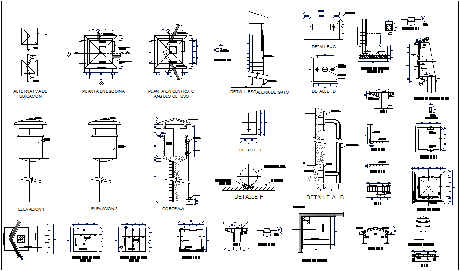
Construction with elevation and section with detail of watch tower dwg file
Description
Construction with elevation and section with detail of watch tower dwg file in view of
alternative location with existing wall view and elevation with tower concrete exposed
and different detail view with its joint and support with necessary detail and dimension.
Uploaded by:

