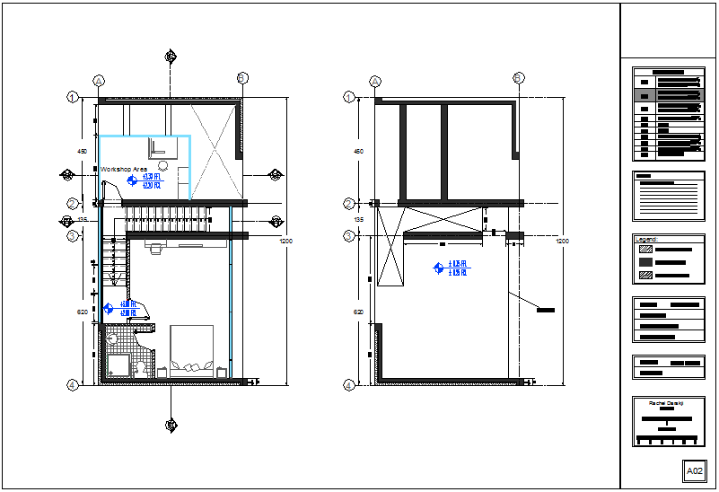
First floor plan with structural system of apartment dwg file
Description
First floor plan with structural system of apartment dwg file in plan in view of
floor plan area view,bedroom,kitchen,washing area and structural view with wall
and wall support with necessary dimension.
Uploaded by:

