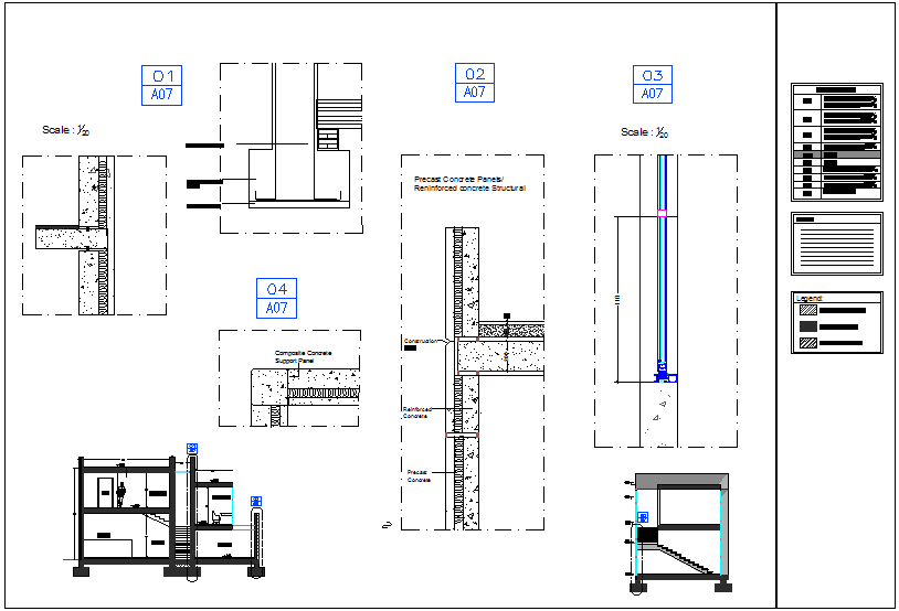
Wall section different detail construction view of single story apartment dwg file
Description
Wall section different detail construction view of single story apartment dwg file in section view of wall with wall view, wall support,reinforced concrete footing, concrete,hollow block masonry,construction joint with different section and necessary dimension.
Uploaded by:

