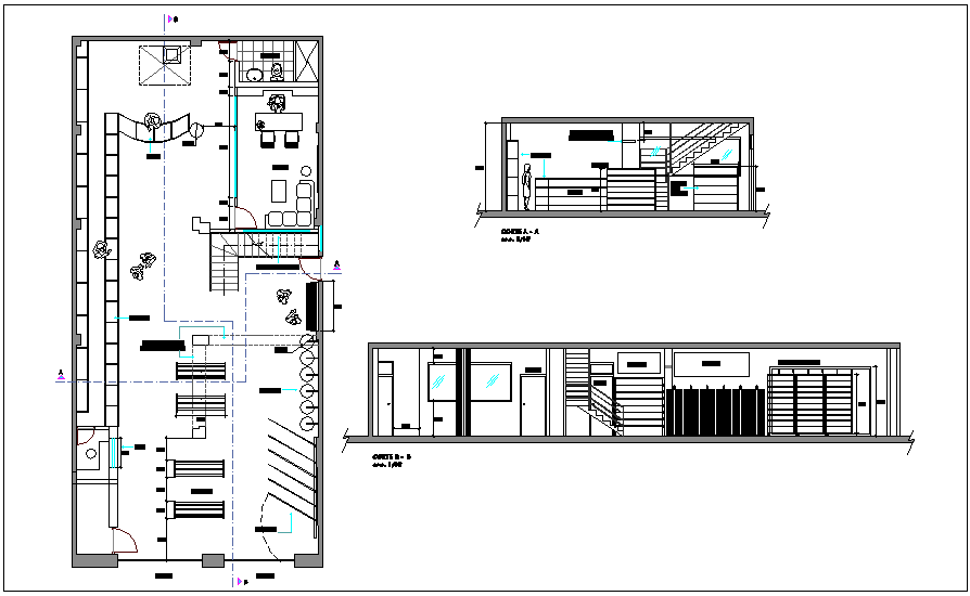
Interior design of commercial shop plan with different axis section view dwg file
Description
Interior design of commercial shop plan with different axis section view dwg file in plan with view of wall view,entrance with designer table view,office view with designer chair
and table view,Exhibitors,counter view, and section view with Rotating displays and
advertising view,Scaffold for cartons with necessary dimension.
File Type:
DWG
File Size:
1018 KB
Category::
Interior Design
Sub Category::
Showroom & Shop Interior
type:
Gold
Uploaded by:

