Plan,elevation and section view with column detail view for cellar dwg file
Description
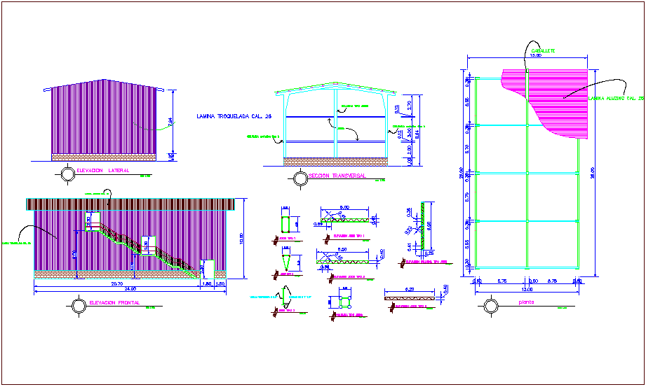
Plan,elevation and section view with column detail view for cellar dwg file in plan with view of wall and easel view and elevation with wall view and section view and detail view of column with necessary dimension.
Uploaded by:

