LOGIN
HOME
CATEGORIES
UPLOAD FILE
PRICING
HOUSE PLAN
ABOUT US
CONTACT US
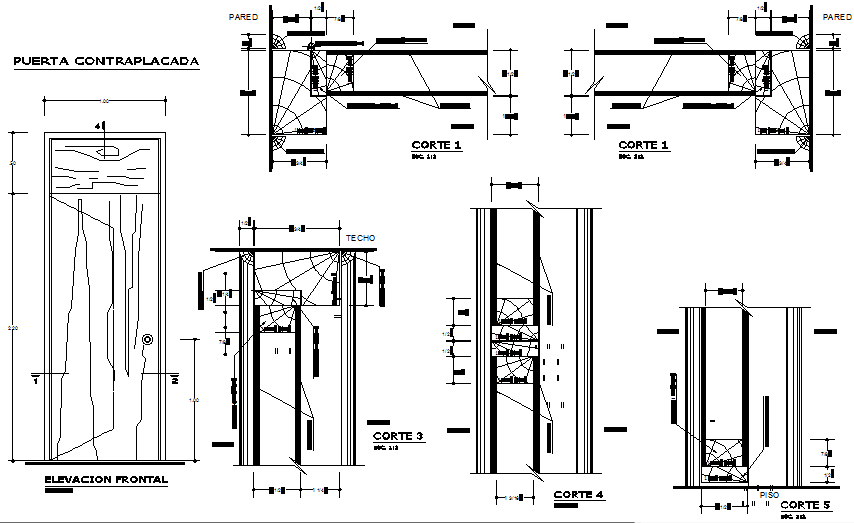
Details wooden door dwg file
Home
Categories
Furniture
Door & Window Blocks
Details wooden door dwg file
Uploaded by:
Dhara
View Profile
View Profile
Description
Details wooden door dwg file, with elevation and section detail, naming detail, dimension detail, section line detail, etc.
File Type:
DWG
File Size:
97 KB
Category::
Furniture
Sub Category::
Door & Window Blocks
type:
Gold
Uploaded by:
Dhara
View Profile
Download
Add to libary
find Latest
Related
Files