Working drawing residence
Description
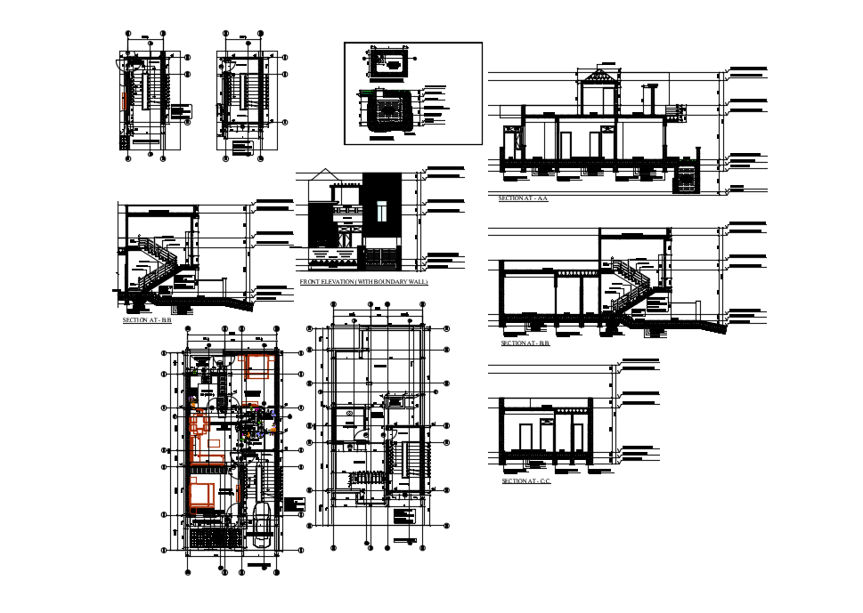
Working drawing residence dwg file. A plan that includes wall construction, doors and window elevation, column and beam details, the raw material used details, staircases, roof plan, garden, parking area and much more of the Working drawing residence.
Uploaded by:

