Educational institute steel structural section view dwg file
Description
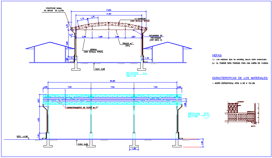
Educational institute steel structural section view dwg file in section view with view of
wall,wall support with steel Chanel view joint and base column view with support and view of wall with necessary dimension.
Uploaded by:

