LOGIN
HOME
CATEGORIES
UPLOAD FILE
PRICING
HOUSE PLAN
ABOUT US
CONTACT US
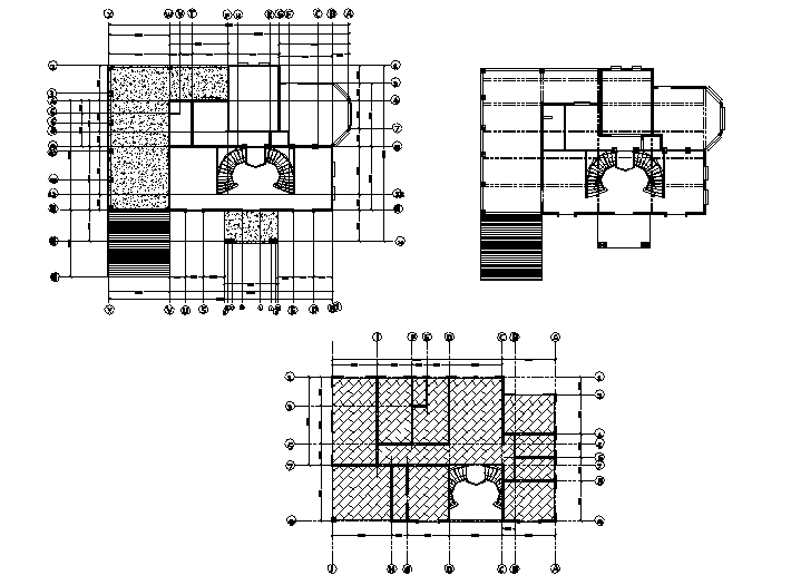
Planning cottage detail dwg file
Home
Categories
3d Model
3D House Design
Planning cottage detail dwg file
Uploaded by:
Dhara
View Profile
View Profile
Description
Planning cottage detail dwg file, centre line plan detail, dimension detail, anming detail, etc.
File Type:
DWG
File Size:
402 KB
Category::
3d Model
Sub Category::
3D House Design
type:
Gold
Uploaded by:
Dhara
View Profile
Download
Add to libary
find Latest
Related
Files