LOGIN
HOME
CATEGORIES
UPLOAD FILE
PRICING
HOUSE PLAN
ABOUT US
CONTACT US
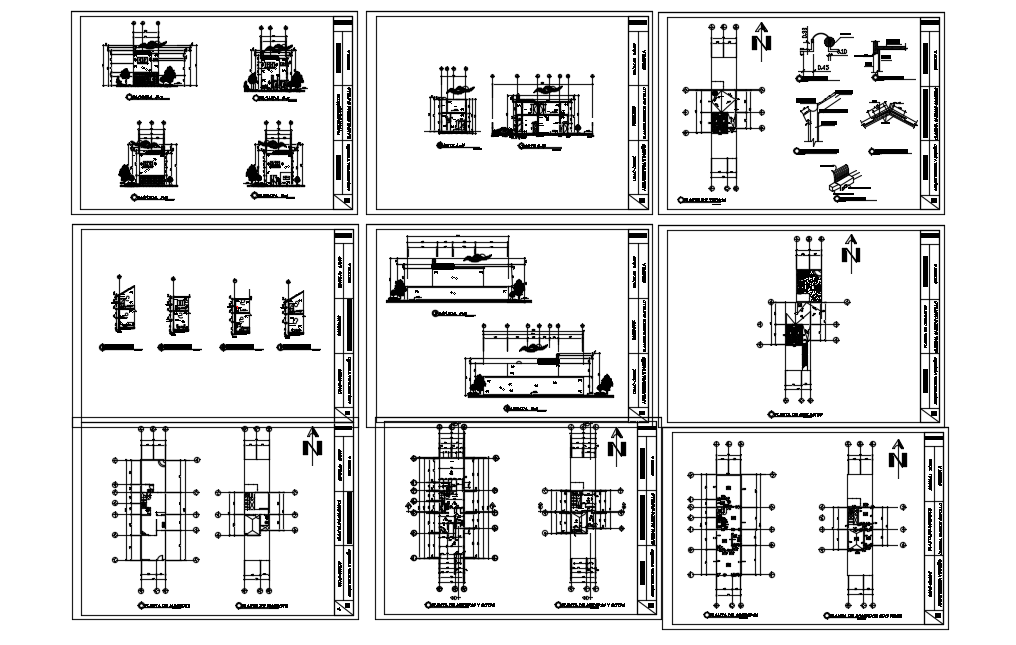
Living place dwg file
Home
Categories
Architecture
House Plan
Living place dwg file
Uploaded by:
Poonam
View Profile
View Profile
Description
Living place dwg file. with in-out way, kitchen, dining hall,room.,washing area, bedrooms, seating area with plan and elevation.
File Type:
DWG
File Size:
8.8 MB
Category::
Architecture
Sub Category::
House Plan
type:
Free
Uploaded by:
Poonam
View Profile
Download
Add to libary
find Latest
Related
Files