LOGIN
HOME
CATEGORIES
UPLOAD FILE
PRICING
HOUSE PLAN
ABOUT US
CONTACT US
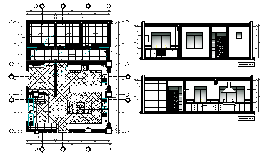
Working drawing of kitchen.
Home
Categories
Interior Design
Kitchen Interiors
Working drawing of kitchen.
Uploaded by:
Vaas
View Profile
View Profile
Description
Working drawing of kitchen. Detail plan with furniture, section line, dimensions and sectional elevation with drawers, wall unit, sink sand platform section and other detail.
File Type:
DWG
File Size:
499 KB
Category::
Interior Design
Sub Category::
Kitchen Interiors
type:
Gold
Uploaded by:
Vaas
View Profile
Download
Add to libary
find Latest
Related
Files