LOGIN
HOME
CATEGORIES
UPLOAD FILE
PRICING
HOUSE PLAN
ABOUT US
CONTACT US
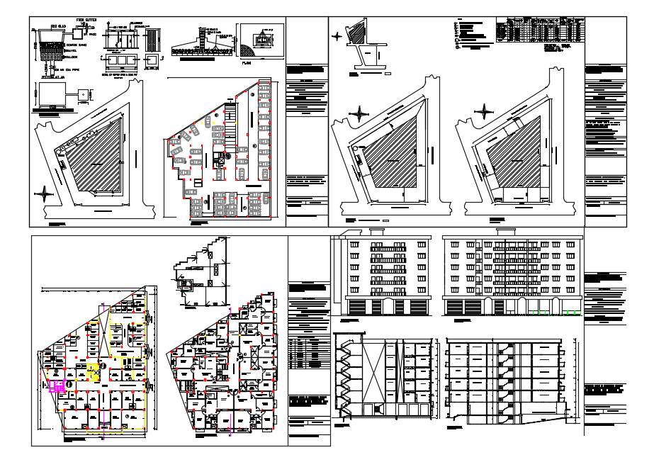
Commercial complex vegetable market
Home
Categories
Details
Architectural Detail Drawings
Commercial complex vegetable market
Uploaded by:
Poonam
View Profile
View Profile
Description
Commercial complex vegetable market dwg file. This file contains plan; elevation; section and foundation details.
File Type:
DWG
File Size:
484 KB
Category::
Details
Sub Category::
Architectural Detail Drawings
type:
Gold
Uploaded by:
Poonam
View Profile
Download
Add to libary
find Latest
Related
Files