LOGIN
HOME
CATEGORIES
UPLOAD FILE
PRICING
HOUSE PLAN
ABOUT US
CONTACT US
Beam and column section detail dwg file
Home
Categories
Details
Construction Details
Beam and column section detail dwg file
Uploaded by:
Dhara
View Profile
View Profile
Description
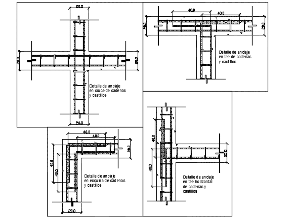
Beam and column section detail dwg file, with reinforcement detail, dimension detail, naming detail, etc.
File Type:
DWG
File Size:
2.6 MB
Category::
Details
Sub Category::
Construction Details
type:
Gold
Uploaded by:
Dhara
View Profile
Download
Add to libary
find Latest
Related
Files