LOGIN
HOME
CATEGORIES
UPLOAD FILE
PRICING
HOUSE PLAN
ABOUT US
CONTACT US
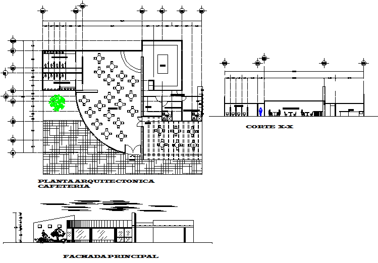
Coffee bar plan detail dwg file
Home
Categories
Architecture
Corporate Building
Coffee bar plan detail dwg file
Uploaded by:
Dhara
View Profile
View Profile
Description
Coffee bar plan detail dwg file, with plan, elevation and section detail, center line plan detail, dimension detail, naming detail, plant detail, etc.
File Type:
DWG
File Size:
568 KB
Category::
Architecture
Sub Category::
Corporate Building
type:
Gold
Uploaded by:
Dhara
View Profile
Download
Add to libary
find Latest
Related
Files