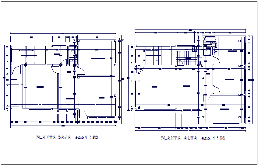
Weaving and packaging workshop related with industrial area floor plan dwg file
Description
Weaving and packaging workshop related with industrial area floor plan dwg file in plan with wall and area view with residential room view,hall and office with detail.
Uploaded by:

