Detail of supermarket project plan detail dwg file.
Description
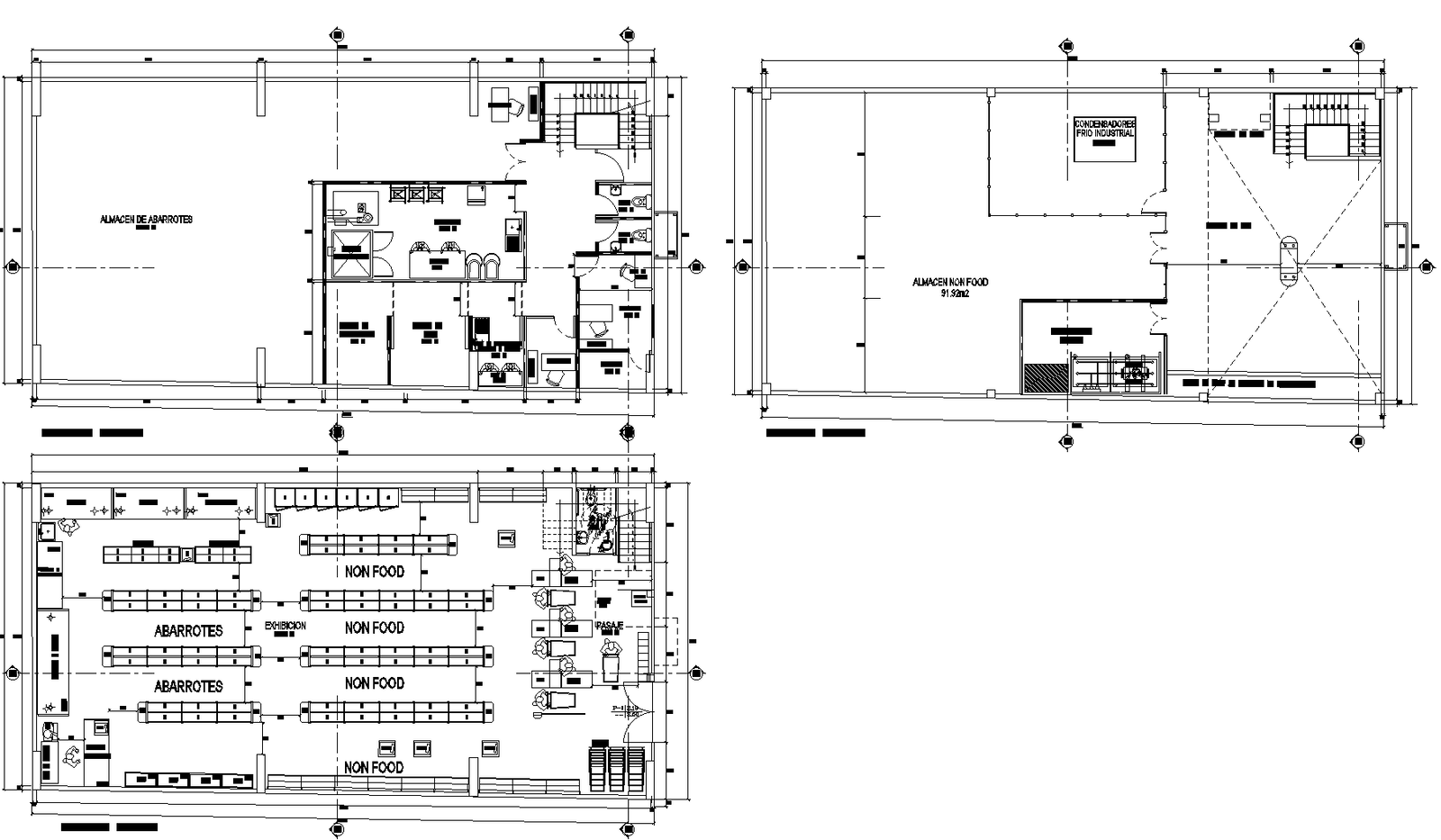
Supermarket project plan in detail with proper placement. Supermarket project designed in detail with plan and elevation. Non-food area, passage area, cashier counter, stock groceries, etc.,

Uploaded by:
Eiz
Luna

