Modern Hotel Design Drawing with Floor Plan Sections Details
Description
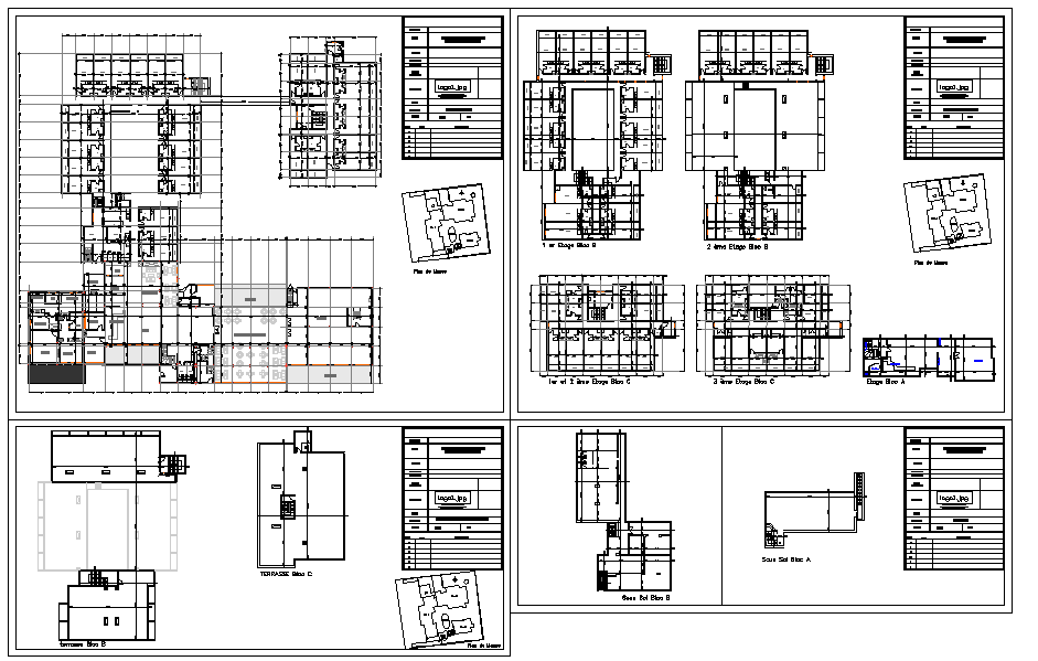
This Modern Hotel Design drawing presents a complete architectural layout, including floor plans, sections, and elevation views that highlight both functionality and modern aesthetics. The design integrates luxury with practicality, featuring a well-organized structure for guest rooms, lobby areas, restaurants, service spaces, and parking facilities.
Each section of the drawing showcases professional detailing and proportionate spacing to ensure smooth circulation and comfort for guests and staff. The elevation design emphasizes symmetry and style, creating a visually appealing façade. With clear zoning for residential, recreational, and utility areas, this project file offers a refined approach to hospitality architecture.
Perfect for architects, civil engineers, and interior planners, this design serves as a professional reference for creating high-end hotel spaces that meet contemporary building standards. It is an excellent resource for understanding spatial distribution, design flow, and modern construction presentation techniques.

Uploaded by:
john
kelly
