120 Bed Hospital Design Detail with Floor Plan Section Layout
Description
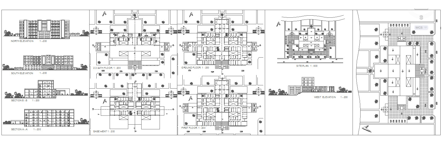
This 120 Bed Hospital Design Detail drawing provides a complete architectural layout that includes the floor plan, elevation, and section details. The design emphasizes efficient zoning for wards, ICUs, operation theatres, consultation rooms, and waiting areas, ensuring smooth patient flow and operational functionality.
The plan integrates healthcare infrastructure standards with architectural accuracy, showcasing emergency access, parking areas, staff zones, and landscaped surroundings. Each elevation and section view highlights structural proportions, ventilation, and spatial optimization suitable for modern hospital environments.
Ideal for architects, civil engineers, and healthcare planners, this drawing offers a professional reference for designing multi-bed hospitals with a focus on comfort, hygiene, and accessibility. It serves as a practical example of combining design excellence and functionality in healthcare architecture projects.

Uploaded by:
Jafania
Waxy

