Stair section view with construction detail for house dwg file
Description
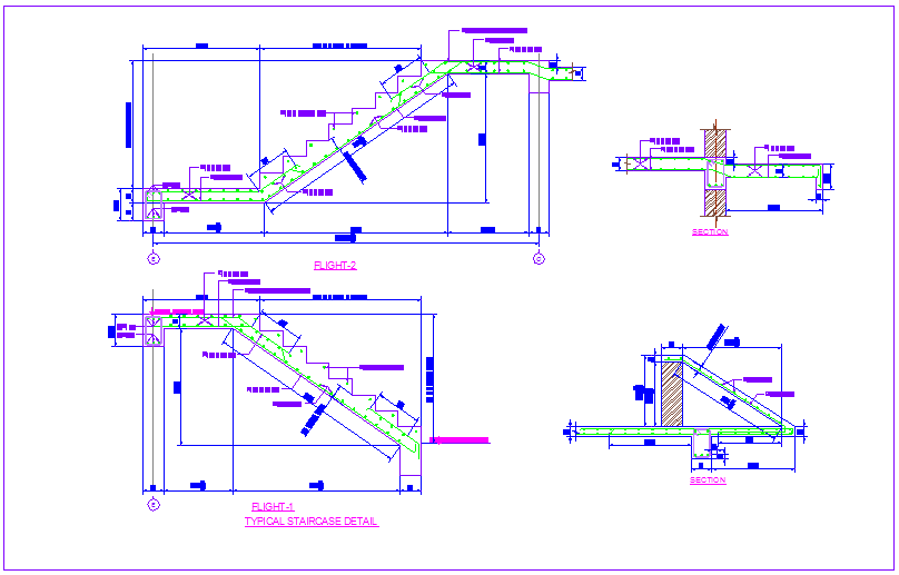
Stair section view with construction detail for house dwg file in house stair section view with step view with concrete view and wall support and balcony section view with
detail view with necessary dimension.
Uploaded by:

