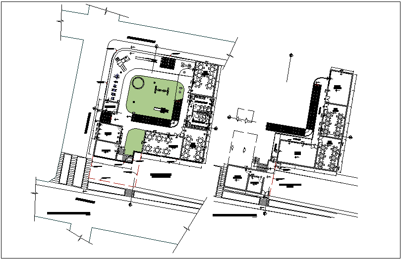
Floor plan of educational institute dwg file
Description
Floor plan of educational institute dwg file in first floor plan with view of wall,area
distribution,corridor area,classroom view with its distribution and planning,kitchen,
deposit and washing area and second floor plan with classroom and music room view
with necessary dimension.
Uploaded by:

