Bowling plan detail dwg file.
Description
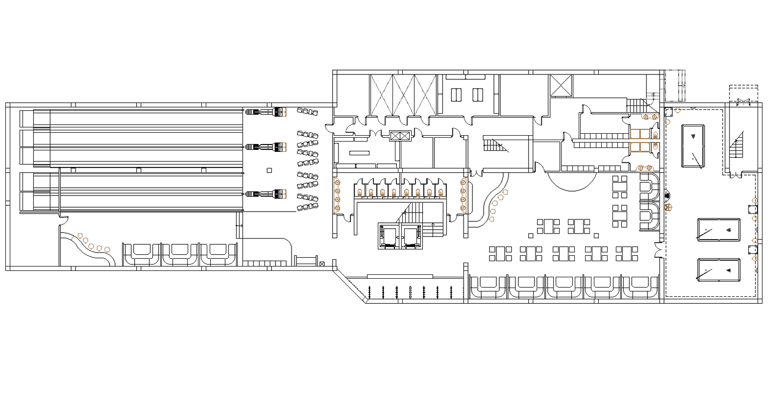
Bowling plan. Detailing of frames. In this plan, there are 5 frames wherein each frames minimum two and maximum six players can be played. For that 6 players seating has been allotted and shown in the plan.
File Type:
DWG
File Size:
335 KB
Category::
Dwg Cad Blocks
Sub Category::
Cad Logo And Symbol Block
type:
Gold

Uploaded by:
Liam
White
