Higher and lower plan of residential area dwg file
Description
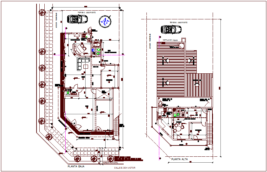
Higher and lower plan of residential area dwg file in higher plan with view of tree and parking area view with area distribution and wall view,room distribution,washing area and dining area view and
higher area plan with view of wall and distribution of area with necessary dimension.
Uploaded by:

