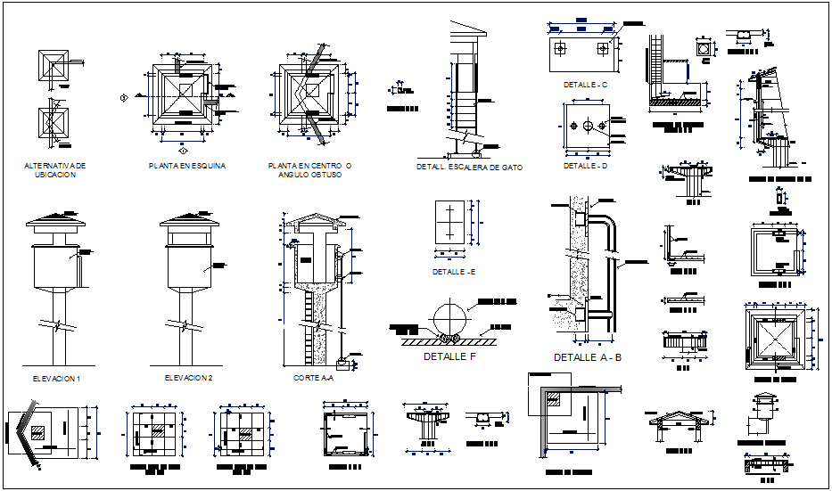
Tower guard booths detail with construction view dwg file
Description
Tower guard booths detail with construction view dwg file in section view with booth support view with concrete view,booth cylindrical area and cap shaped roof view in top and plan,elevation and related detail view with necessary dimension.
Uploaded by:

