LOGIN
HOME
CATEGORIES
UPLOAD FILE
PRICING
HOUSE PLAN
ABOUT US
CONTACT US
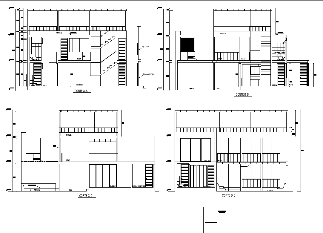
Dormitory plan sections,dwg file
Home
Categories
Architecture
House Plan
Dormitory plan sections,dwg file
Uploaded by:
Forel
View Profile
View Profile
Description
Dormitory plan dwg file with side sections showing toilet details,stairs,sofa,measurement details.
File Type:
DWG
File Size:
325 KB
Category::
Architecture
Sub Category::
House Plan
type:
Gold
Uploaded by:
Forel
View Profile
Download
Add to libary
find Latest
Related
Files