Main room door design with isometric view,plan and elevation dwg file
Description
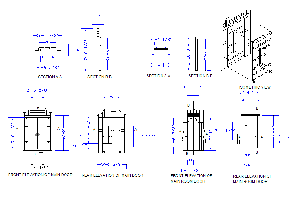
Main room door design with isometric view,plan and elevation dwg file in isometric view with door
design view with wall support view and elevation view with main portion of door with round clamp view with both side of door and view of door frame and section view with necessary dimension.
Uploaded by:

