LOGIN
HOME
CATEGORIES
UPLOAD FILE
PRICING
HOUSE PLAN
ABOUT US
CONTACT US
Constructive section plan detail dwg file.
Home
Categories
Details
Construction Details
Constructive section plan detail dwg file.
Uploaded by:
Liam
White
View Profile
View Profile
Description
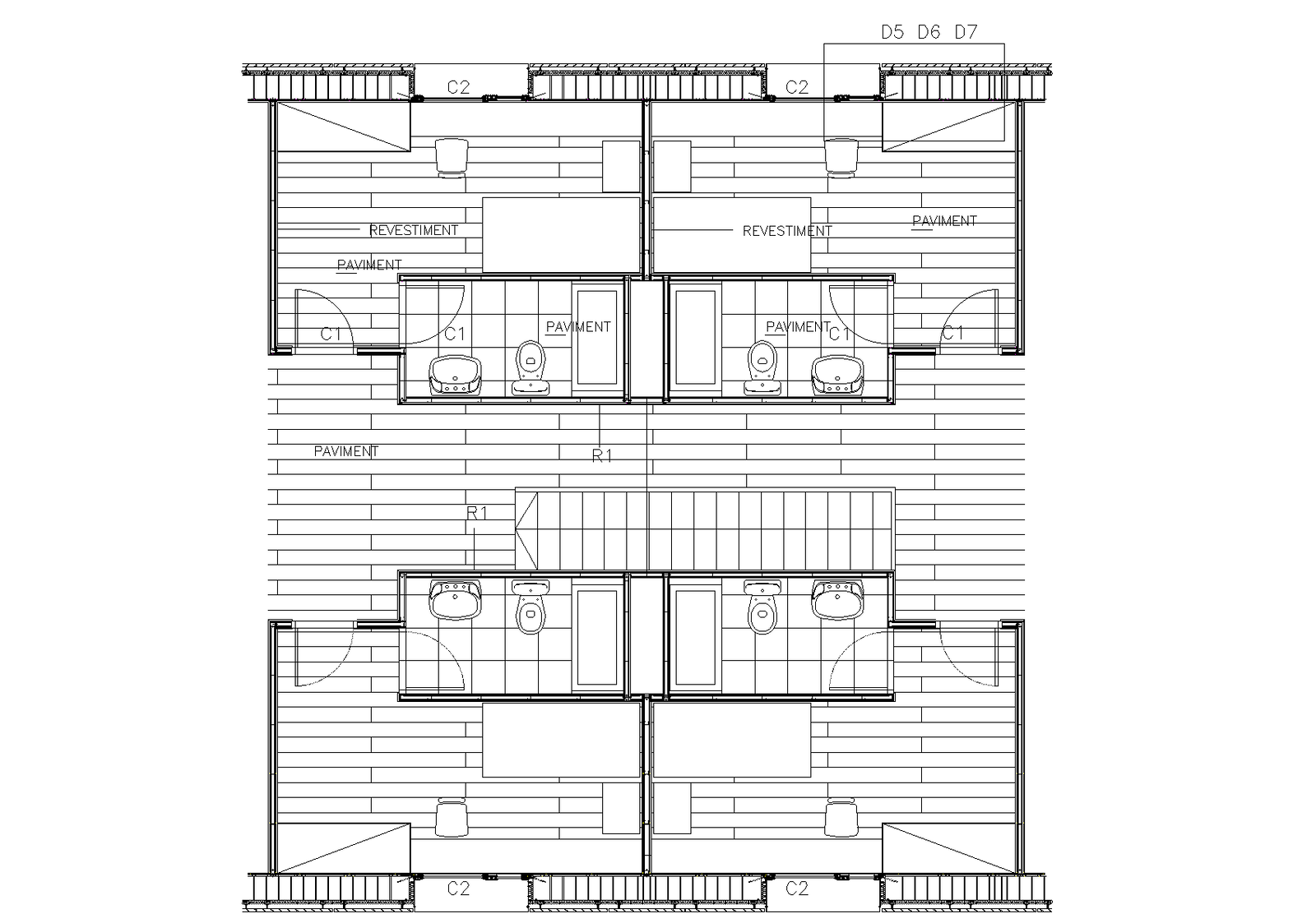
Constructive section plan. The top view plan of constructive plan with detailing of pavement, wash-basin, W.C, shower area, etc.,
File Type:
DWG
File Size:
1.3 MB
Category::
Details
Sub Category::
Construction Details
type:
Gold
Uploaded by:
Liam
White
View Profile
Download
Add to libary
find Latest
Related
Files