Bridge part steel structure view dwg file
Description
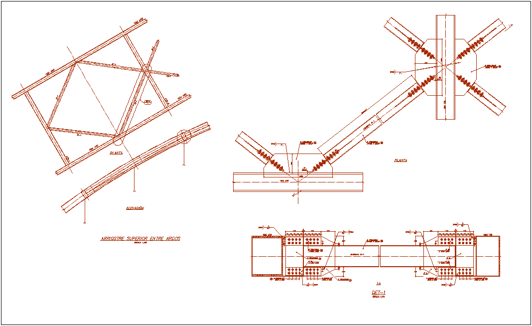
Bridge part steel structure view dwg file in sectional detail view with arc view,metal sheet view,joining view of two sheet with bolting view and view of part,channel joint view in elevation and necessary detail view with dimension.
Uploaded by:

