Terrace plan of bungalows with architectural view dwg file
Description
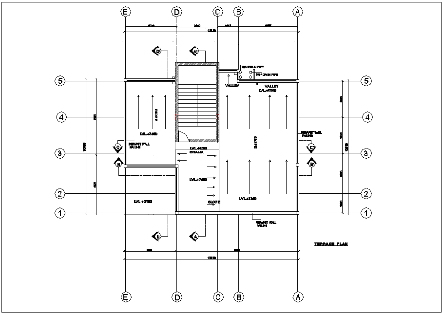
Terrace plan of bungalows with architectural view dwg file in terrace plan with view of area distribution of bungalows and view of wall and stair view,slop,railing and floor level detail with necessary dimension.
Uploaded by:

