Flooring view with tile sanitary view for bungalows of ground floor dwg file
Description
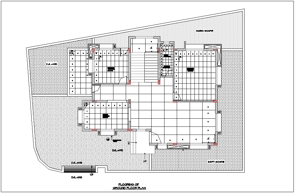
Flooring view with tile sanitary view for bungalows of ground floor dwg file in ground floor plan with view of area distribution and wall view,bungalows area view with flooring view with tile of flooring with different pattern with necessary detail view in plan.
Uploaded by:

