LOGIN
HOME
CATEGORIES
UPLOAD FILE
PRICING
HOUSE PLAN
ABOUT US
CONTACT US
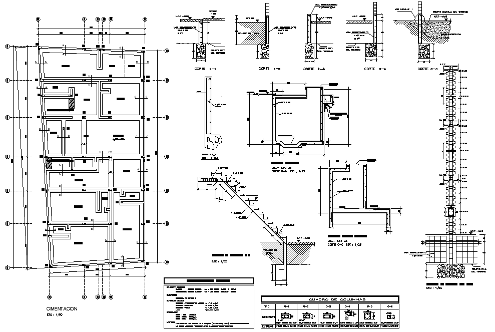
Structural building plan layout file
Home
Categories
Architecture
Corporate Building
Structural building plan layout file
Uploaded by:
Dhara
View Profile
View Profile
Description
Structural building plan layout file, stair section detail, foundation section detail, centre lien detail, diemnsion detail, etc.
File Type:
DWG
File Size:
1.2 MB
Category::
Architecture
Sub Category::
Corporate Building
type:
Gold
Uploaded by:
Dhara
View Profile
Download
Add to libary
find Latest
Related
Files