Car parking layout of shopping center dwg file
Description
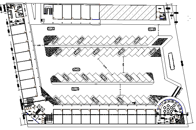
Car parking layout of shopping center dwg file.
Car parking layout of shopping center that includes a detailed view of indoor roads, outdoor roads, specified car parking space, entry and exit gate, sanitary facilities and much more of car parking layout.
Uploaded by:
