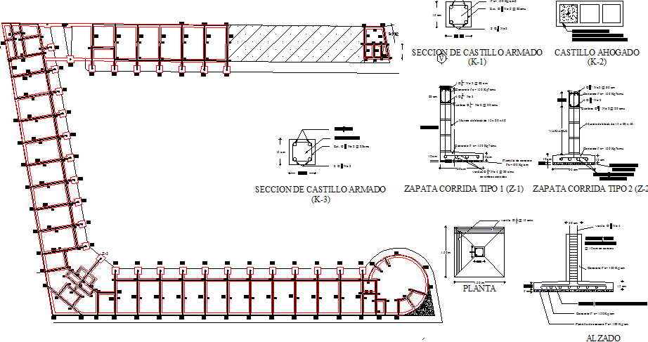
Foundation and construction details of shopping center dwg file
Description
Foundation and construction details of shopping center dwg file.
Foundation and construction details of shopping center that includes a detailed view of column construction, beam construction, materials, measures and much more of construction details.
Uploaded by:

