Structure details of third floor of processing plant dwg file
Description
Structure details of third floor of processing plant dwg file.
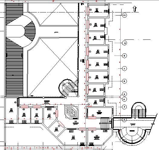
Structure details of third floor of processing plant that includes a detailed view of service area, general hall, staircases, departmental offices, dining area, kitchen, cafeteria, meeting room, terrace, offices and much more of floor plan details.
Uploaded by:

