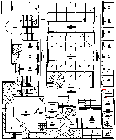
First floor layout plan details of urban area industrial plant dwg file
Description
First floor layout plan details of urban area industrial plant dwg file.
First floor layout plan details of urban area industrial plant that includes a detailed view of main entry gate, meeting room, conference hall, car parking area, staircase view, reception area, guard cabin, waiting area, inquiry desk, offices, head offices, kitchen, dining area and much more of industrial plant.
Uploaded by:

