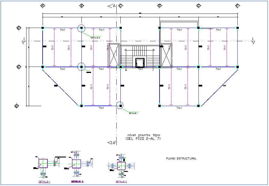
Floor 2 to 7 structural plan for office premises dwg file
Description
Floor 2 to 7 structural plan for office premises dwg file in second to seventh floor plan with view of
column mounting position and wall view with wall and wall support view with detail view of atistar
with necessary dimension.
Uploaded by:
