Office sanitary view with 2 to 7 floor plan with legend dwg file
Description
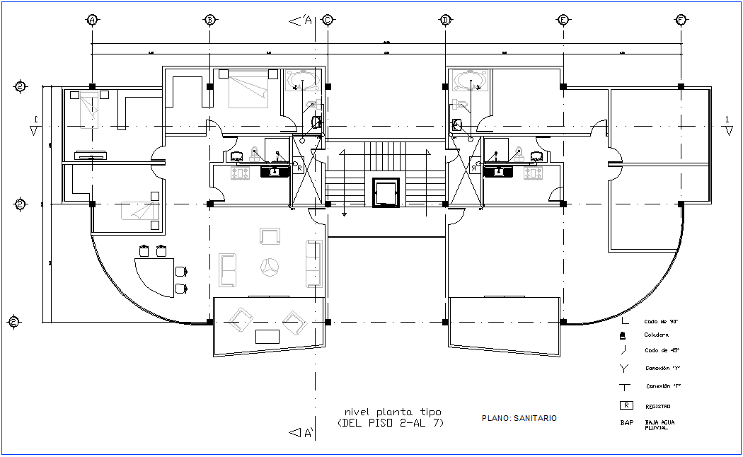
Office sanitary view with 2 to 7 floor plan with legend dwg file in plan with view of area view of office
with washing area view and view of sanitary water line from wash tub from washing area with legend and same view of floor of second floor to seventh floor with necessary dimension.
Uploaded by:

