First and second floor plan of office with detail dwg file
Description
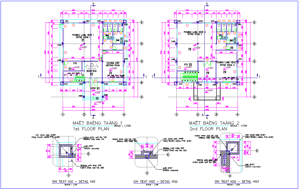
First and second floor plan of office with detail dwg file in first floor pan with view of wall and door and window view,entry way,reception,office area,lobby,meeting room,washing area and second floor plan with view of area distribution wit washing area and view of office with washing area and detail view
of concrete view with necessary dimension.
Uploaded by:

