Roof plan with detail for office design dwg file
Description
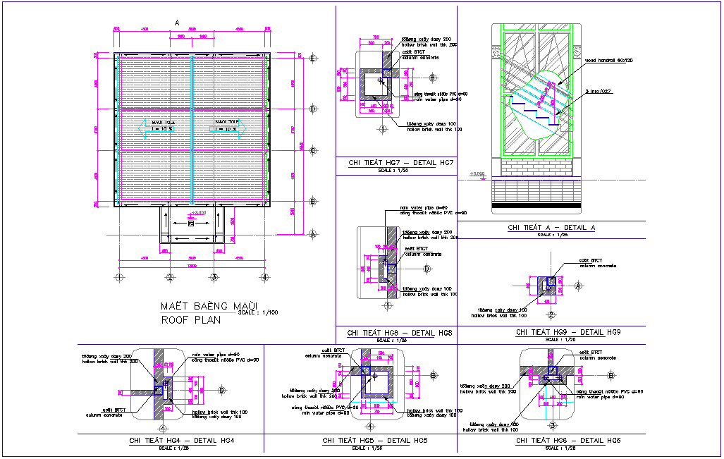
Roof plan with detail for office design dwg file in roof plan with view of area distribution view and view of wall and texture view with wall support view and view of direction and view of wall thickness with support view and stair view with necessary dimension.
Uploaded by:

