LOGIN
HOME
CATEGORIES
UPLOAD FILE
PRICING
HOUSE PLAN
ABOUT US
CONTACT US
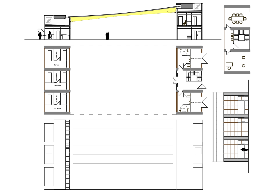
Elevation and section Market dwg file
Home
Categories
Architecture
Mall & Shopping Center
Elevation and section Market dwg file
Uploaded by:
Poonam
View Profile
View Profile
Description
Elevation and section Market dwg file. Front elevation of market with structure plan and elevation design, people of furniture detail in door and window detail, etc
File Type:
DWG
File Size:
123 KB
Category::
Architecture
Sub Category::
Mall & Shopping Center
type:
Gold
Uploaded by:
Poonam
View Profile
Download
Add to libary
find Latest
Related
Files