Shop dwg file
Description
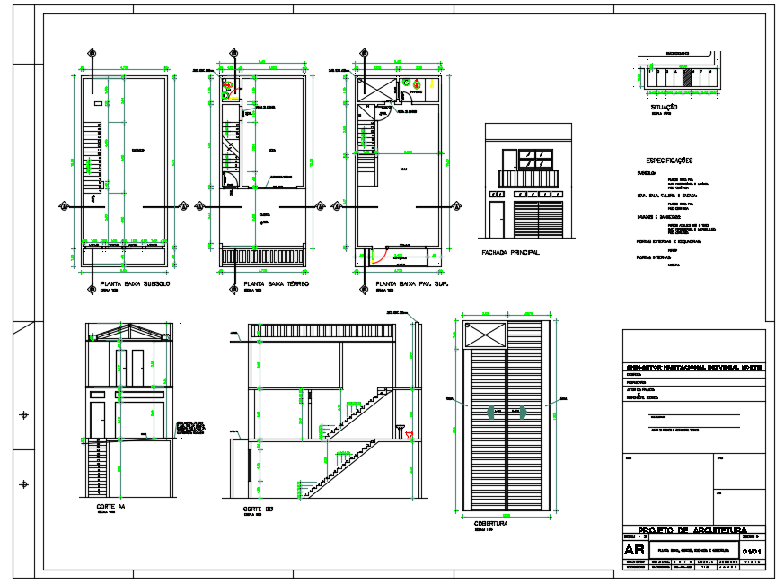
Shop dwg file.The architecture layout plan of two flooring elevation and sectional details that includes a detailed view of main elevation, sectional view, doors and windows, staircase, drawing labels details and other text information in autocad format.
Uploaded by:
