Section with different axis view for office building dwg file
Description
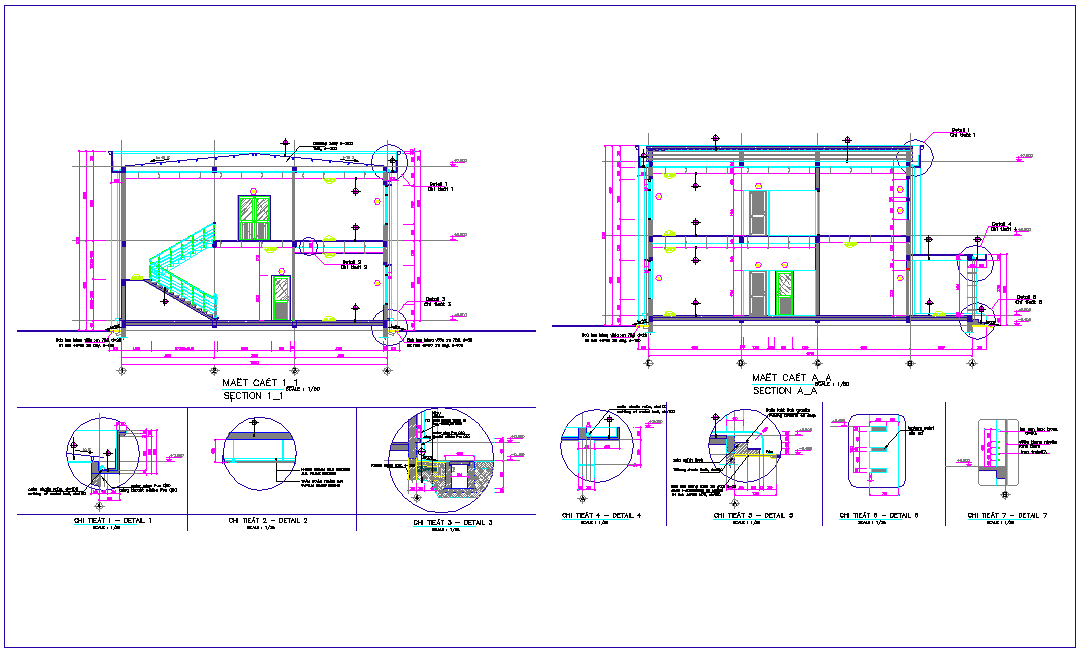
Section with different axis view for office building dwg file in section with view of floor,floor level,wall,door and window view and view of wall and wall support view with office area view with necessary dimension.
Uploaded by:

