Ceramic view of second floor plan for banking agency dwg file
Description
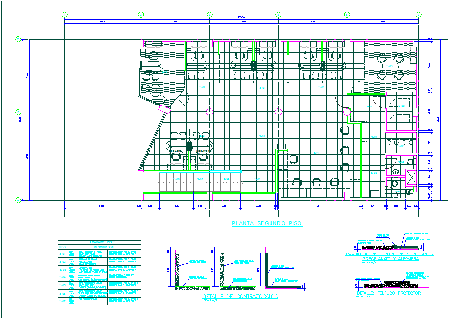
Ceramic view of second floor plan for banking agency dwg file in plan with area distribution with office area and view of ceramic view with tiles and washing area view with floor view with necessary detail and dimension.
Uploaded by:

