Landscaping details of mini commercial center dwg file
Description
Landscaping details of mini commercial center dwg file.
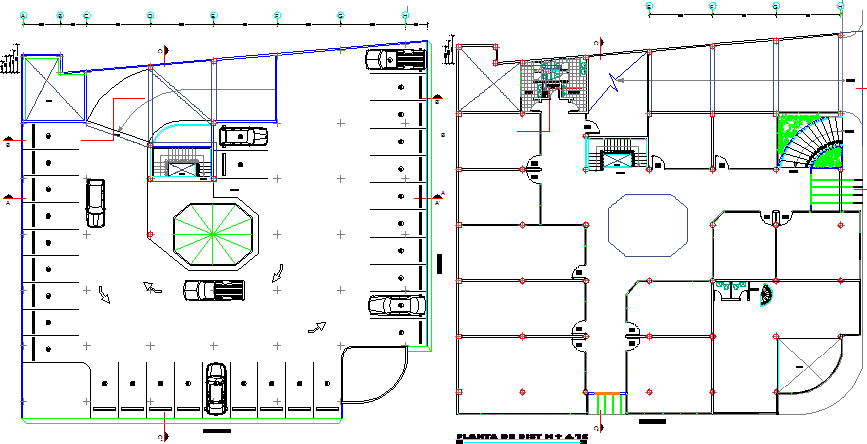
Landscaping details of mini commercial center that includes a detailed view of entry gate, exit gate, indoor roads, car parking view, sanitary installation details, specified car parking space and much more of commercial center project.
Uploaded by:
