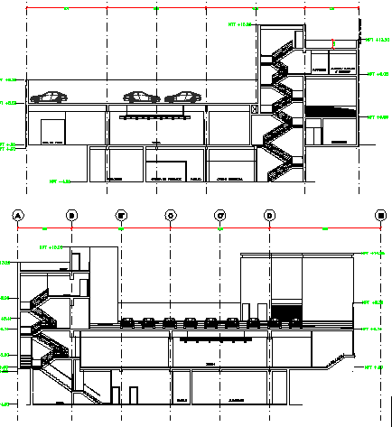
Basement floor with car parking sectional view details dwg file
Description
Basement floor with car parking sectional view details dwg file.
Basement floor with car parking sectional view details that includes a detailed view of ramp view, sectional view, car parking space, indoor staircase view, doors view, specified car space and much more of car parking floor details.
Uploaded by:

