Bath room design with side view for apartment dwg file
Description
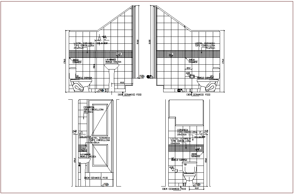
Bath room design with side view for apartment dwg file in elevation with view of wall and wall support with ceramic view and view of hand wash tub view with view of washing line and door view with
WC view with necessary dimension.
Uploaded by:

