Basement ground floor layout plan details of shopping mall dwg file
Description
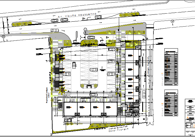
Basement ground floor layout plan details of shopping mall dwg file.
Basement ground floor layout plan details of shopping mall that includes a detailed view of main entry gate, car parking view, tree view, landscaping view, plant view, indoor roads, car parking space, outdoor roads, shops and showrooms and much more of ground floor plan.
Uploaded by:

