Site plan design headquarters of Sulawesi with architectural view dwg file
Description
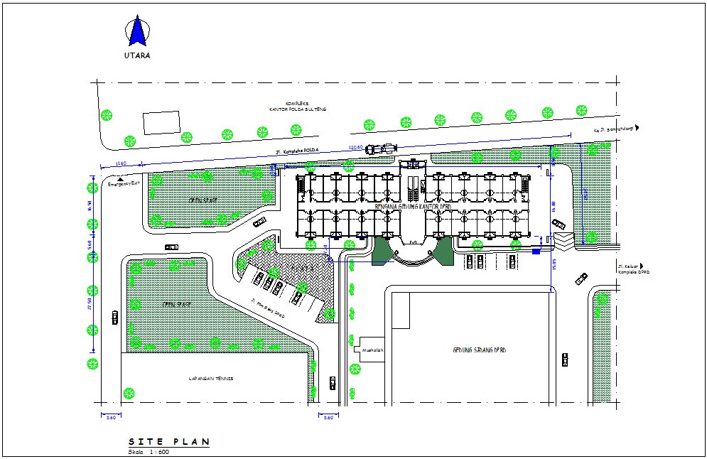
Site plan design headquarters of Sulawesi with architectural view dwg file in plan with view of area view with area distribution with parking area and garden view,open space,office building plan with
its area and plaza area view with necessary dimension.
Uploaded by:

