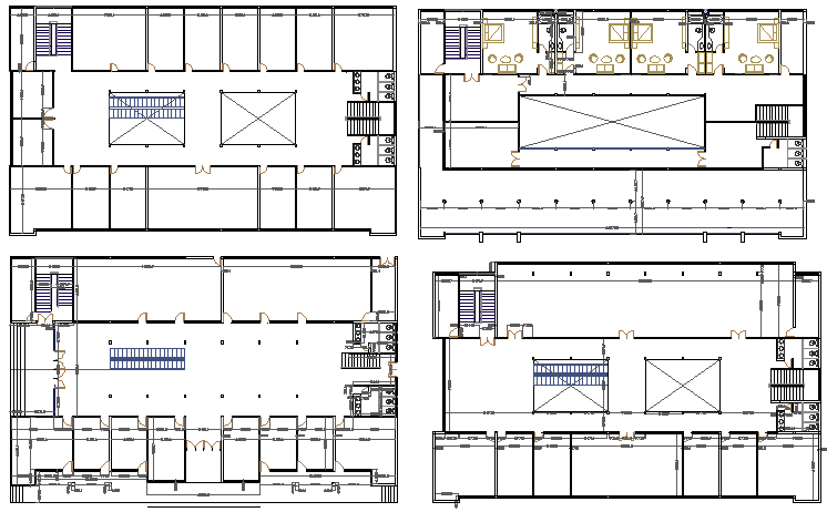
Four flooring shopping mall floor plan layout details dwg file
Description
Four flooring shopping mall floor plan layout details dwg file.
Four flooring shopping mall floor plan layout details that includes a detailed view of main entry and exit gate, green area, tree view, mini garden, basement car parking view, guard cabin, two wheeler parking view, landscaping view, indoor roads, sports ground, layout plan indoor staircases, elevators, lifts, shops and showrooms, corporate offices, departmental stores, brand showrooms, retails market, stores, food stores, kids fun zone with shops and showrooms, departmental stores, theater and much more of shopping mall floor plan.
Uploaded by:

