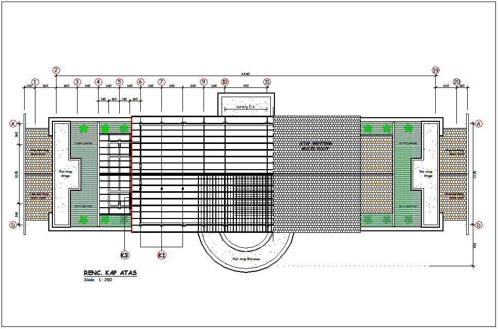
Multi roof plan with construction view for office area dwg file
Description
Multi roof plan with construction view for office area dwg file in plan with view of area distribution
and view of wall and wall support view and view of roof multi tiles view,wall view,roof garden and stage view with designer circular entrance view with necessary dimension.
Uploaded by:
